Warning: Undefined array key "HTTP_ACCEPT_LANGUAGE" in /home/httpd/vhosts/roskothen.ch/roskothen2019/wp-content/themes/roskothen/lib/polylang.php on line 19 Deprecated: substr(): Passing null to parameter #1 ($string) of type string is deprecated in /home/httpd/vhosts/roskothen.ch/roskothen2019/wp-content/themes/roskothen/lib/polylang.php on line 19 Warning: Cannot modify header information - headers already sent by (output started at /home/httpd/vhosts/roskothen.ch/roskothen2019/wp-content/themes/roskothen/lib/polylang.php:19) in /home/httpd/vhosts/roskothen.ch/roskothen2019/wp-content/themes/roskothen/lib/polylang.php on line 40 Apartment buildings, Hombrechtikon | ROSKOTHEN ARCHITEKTEN SIA GMBH Apartment buildings, Hombrechtikon – ROSKOTHEN ARCHITEKTEN SIA GMBH
ROSKOTHEN Menü Button

Apartment buildings, Hombrechtikon

Client
CD Interinvest, Fortimo AG
Task
Multiple dwelling 6 and 7 units
Staff Members
Frank Roskothen, Barbara Ziegenfuss
Status
Implementation 2010

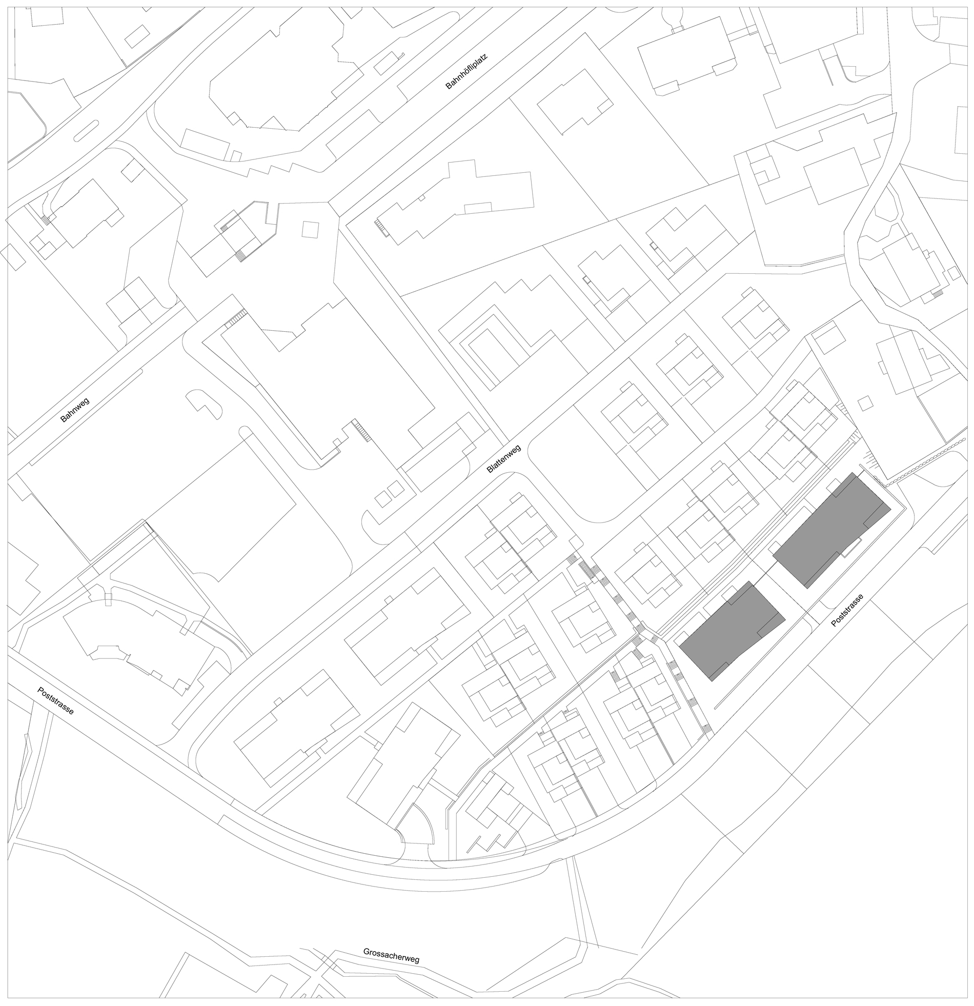
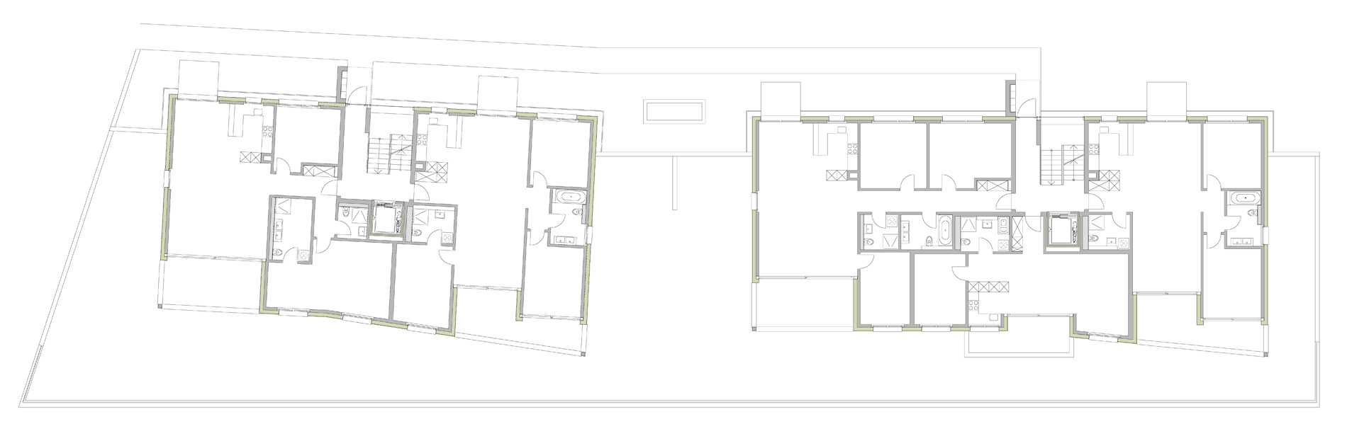
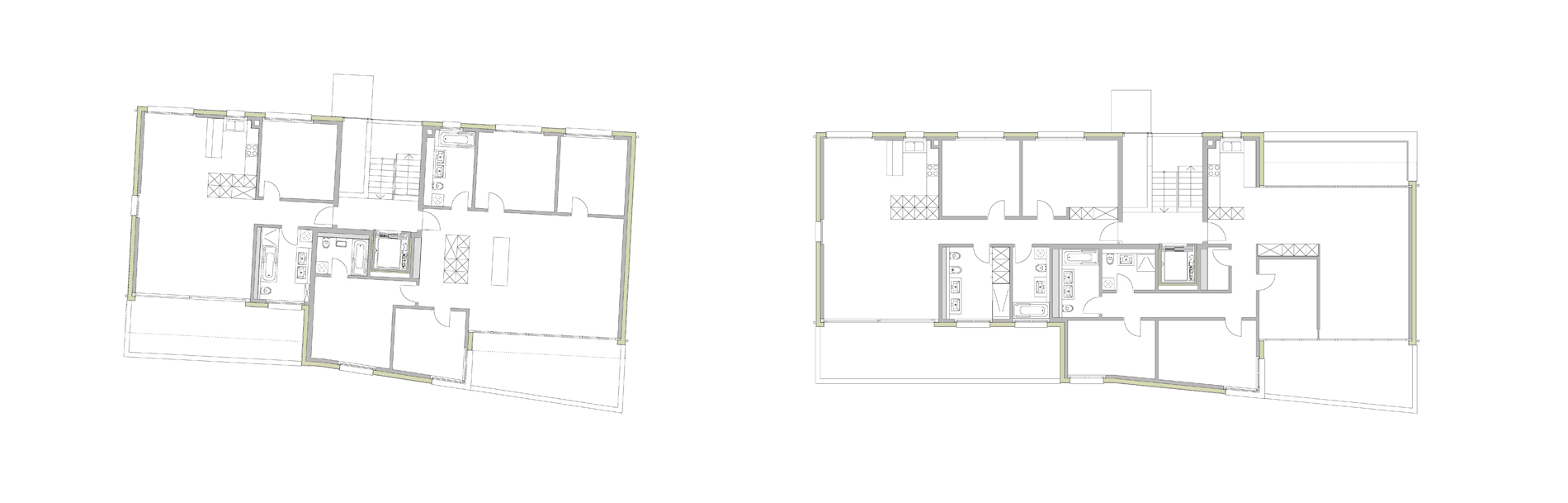
The two apartment buildings (featuring six and seven apartments respectively) are part of the Elfengrund Hombrechtikon housing project. They are located at the lower end of the slope, forming one end of the complex and providing unobstructed views of the surrounding mountain panorama. The interior is developed by a spacious, triaxial stairway that is not typical of buildings built by general contractors. All of the apartments have long, north-south aligned living and dining areas.