Warning: Undefined array key "HTTP_ACCEPT_LANGUAGE" in /home/httpd/vhosts/roskothen.ch/roskothen2019/wp-content/themes/roskothen/lib/polylang.php on line 19 Deprecated: substr(): Passing null to parameter #1 ($string) of type string is deprecated in /home/httpd/vhosts/roskothen.ch/roskothen2019/wp-content/themes/roskothen/lib/polylang.php on line 19 Warning: Cannot modify header information - headers already sent by (output started at /home/httpd/vhosts/roskothen.ch/roskothen2019/wp-content/themes/roskothen/lib/polylang.php:19) in /home/httpd/vhosts/roskothen.ch/roskothen2019/wp-content/themes/roskothen/lib/polylang.php on line 40 Competition Design Bürgerspital Rapperswil | ROSKOTHEN ARCHITEKTEN SIA GMBH Competition Design Bürgerspital Rapperswil – ROSKOTHEN ARCHITEKTEN SIA GMBH
ROSKOTHEN Menü Button

Competition Design Bürgerspital Rapperswil

Client
Ortsgemeinde Rapperswil
Task
competition design conversion and reconstruction Bürgerspital Rapperswil
Staff Members
Frank Roskothen, Diana Vazquez Martinez
Status
competition design 1st Price - 2023

The renovation of historically valuable buildings requires intensive research before construction begins. The Bürgerspital tells us something of the richness of social life in Rapperswil. The refurbishment that is now required, with partial conversion, is intended to honour the history and charitable tradition of the building and prepare it for the future.
In the Bürgerheim project, all interventions are to be minimised in order to protect the valuable building fabric. Insensitive interventions are to be dismantled. New elements will be designed to be removable wherever possible.

The Fischmarktplatz is one of Rapperswil's identity-forming squares. However, the Bürgerspital as a solitary building dominating the square, interacts little with it.

For this reason, we are reinforcing this relationship with an accentuated gesture. The public entrance to the Bürgerspital opens onto the square with a podium that corresponds to the proportions of the building and the square. The sandstone podium consists of a combination of two mirrored ramps and a series of steps that can also be used as seating.
The pedestal supports a nuanced integration of the Bürgerspital with the square and invites people to visit.

In the historic town of Rapperswil, there are numerous successful examples of attached or projecting metal balcony and pergola constructions. The constructions integrate appropriately into the building fabric and impress with their filigree design.
For the Bürgerspital, it therefore seems logical to us to take up this construction method and to seek a solution appropriate to the period in which the building was built.
In this proposal, we use a lightweight metal construction that is placed freely in front of the building without affecting the fabric of the building. For access, only one of the windows needs to be extended to form a door.
The end of the construction is inspired by the ornate structures of the mid-19th century, such as the Villa Merian in Basel. The arches, which are lined with a simple grid, are derived from the arched shapes of the windows on the ground floor and the hints of arches in the louvres.

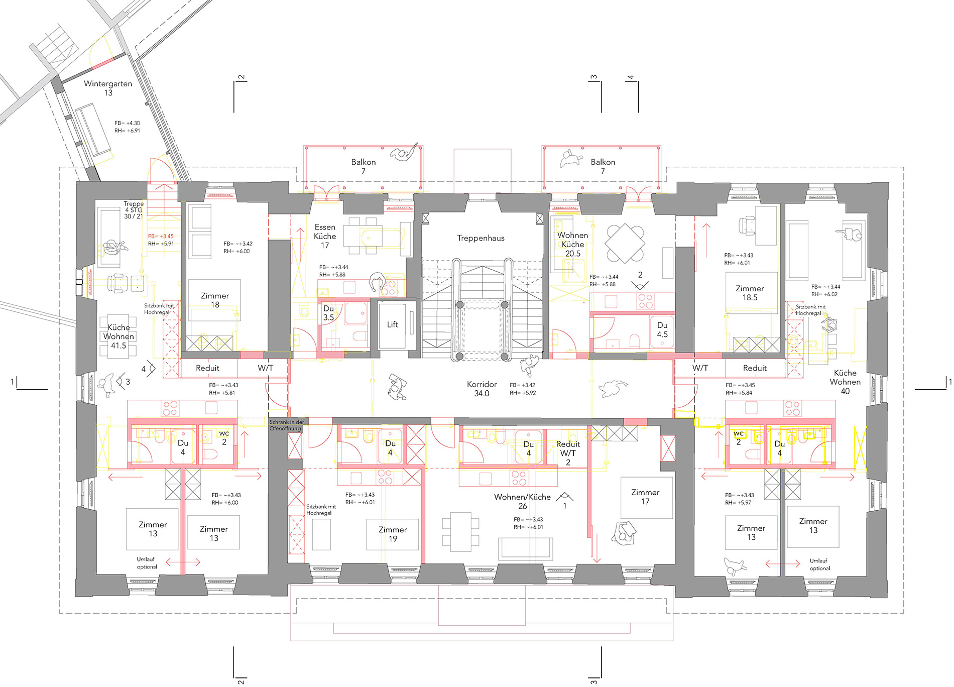
The Bürgerspital can accommodate different forms of living. What they all have in common is the intention to emphasise the inner shape of the building. In each flat, the façades are left open. In the flats in the corner risalites, the rooms can also be connected via sliding doors. This creates generous visual connections and the possibility to circulate freely within the flats. This creates a variety of views and opportunities for interaction with the outside space.

The entrance areas of the corridors in the 3.5-room flats are designed as multifunctional zones. The rooms are grouped around this zone and can be experienced as a free sequence of rooms. The bathroom, kitchen and ancillary rooms are housed in the central furniture unit. This extends into the living area and connects all the rooms. The exterior façade can be experienced in its entirety from the inside.

The multifunctional room on the ground floor is protected and the possible depth of intervention of the conversion is to be kept as low as possible. However, the historical character and size of the room allow it to be used for a wide variety of purposes.
In principle, anything is possible, from a meeting and exhibition space to a citizens' office. We believe it is important for the future use of the building to appeal to as diverse an audience as possible in order to revitalise the building.