Warning: Undefined array key "HTTP_ACCEPT_LANGUAGE" in /home/httpd/vhosts/roskothen.ch/roskothen2019/wp-content/themes/roskothen/lib/polylang.php on line 19 Deprecated: substr(): Passing null to parameter #1 ($string) of type string is deprecated in /home/httpd/vhosts/roskothen.ch/roskothen2019/wp-content/themes/roskothen/lib/polylang.php on line 19 Warning: Cannot modify header information - headers already sent by (output started at /home/httpd/vhosts/roskothen.ch/roskothen2019/wp-content/themes/roskothen/lib/polylang.php:19) in /home/httpd/vhosts/roskothen.ch/roskothen2019/wp-content/themes/roskothen/lib/polylang.php on line 40 Kindergarten on Säntisstrasse in Rapperswil | ROSKOTHEN ARCHITEKTEN SIA GMBH Kindergarten on Säntisstrasse in Rapperswil – ROSKOTHEN ARCHITEKTEN SIA GMBH
ROSKOTHEN Menü Button

Kindergarten on Säntisstrasse in Rapperswil

Client
City of Rapperswil
Task
Extension and reconstruction kindergarten
Staff Members
Frank Roskothen, Pius Bieri
Status
Implementation 2002

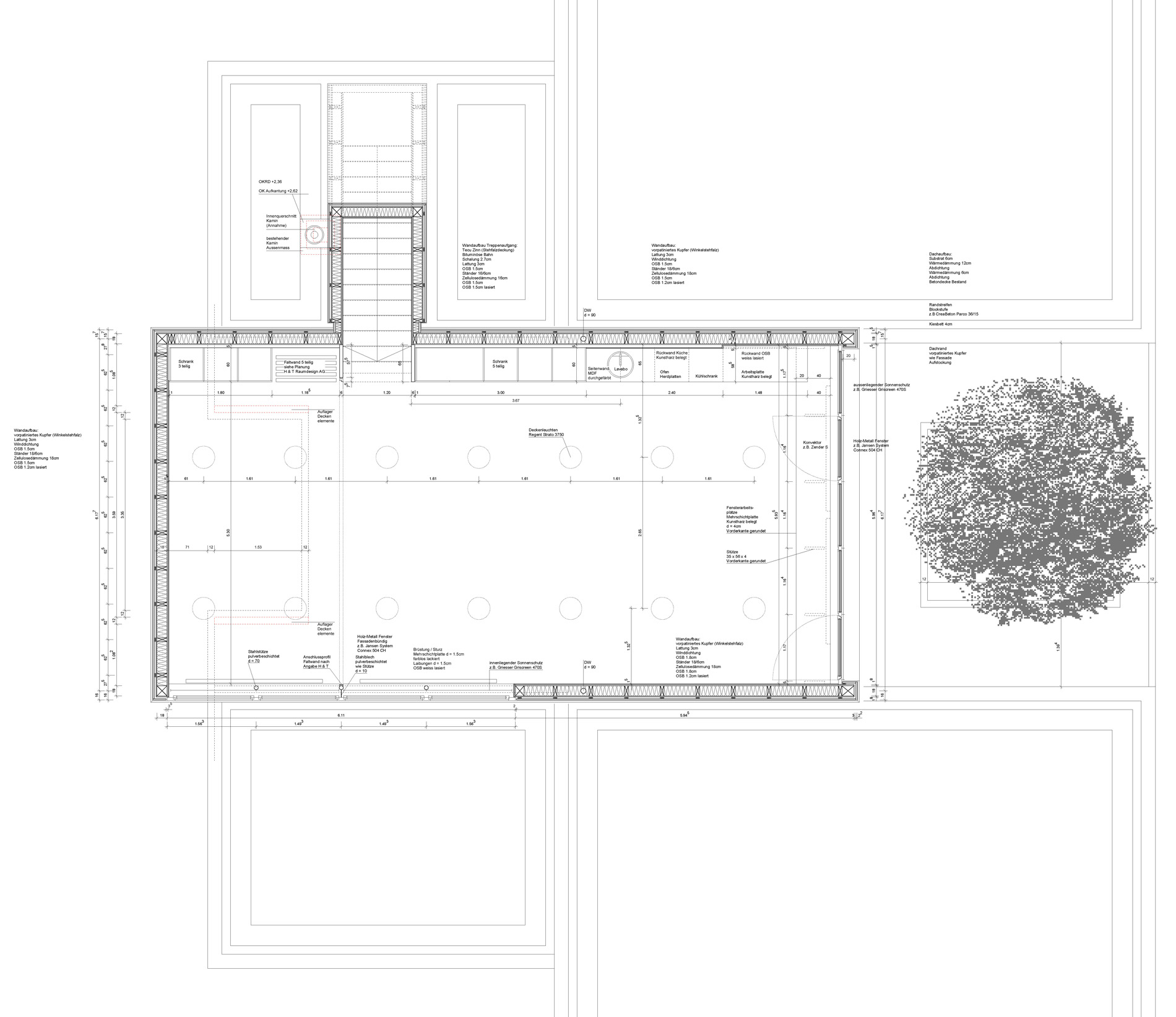
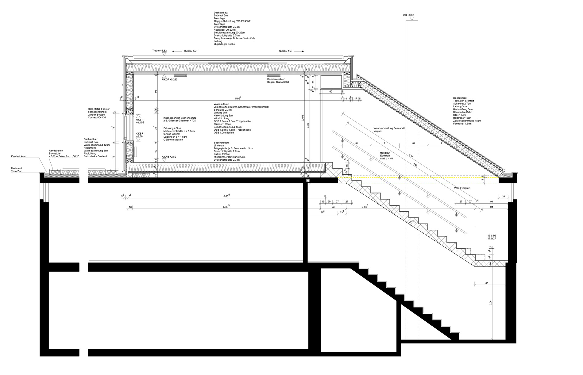
Pre-patinated and tin-plated copper is added to the existing brick and concrete material mix. Featuring shades of green, the new facade in TECU patina combines harmoniously with the materials and colours of the old building.
Due to its function, the stairwell clad in TECU tin stands out from the building’s main structure, but rejoins the composition as one unit thanks to the similar treatment of the material. The roof serves as a fifth facade − and is designed as such. The green area is framed by wide concrete elements. The tree situated on the south side is preserved, and the opening for the tree is enlarged in order to enhance the visual link between the levels.

The architecture of the additional storeys embraces contrast: open − closed, hard − soft. The hard outer shell and the soft inner core. Materials such as wood and linoleum with bright colour schemes predominate inside, while metallic materials in cool shades of grey and green prevail outside.