Warning: Undefined array key "HTTP_ACCEPT_LANGUAGE" in /home/httpd/vhosts/roskothen.ch/roskothen2019/wp-content/themes/roskothen/lib/polylang.php on line 19 Deprecated: substr(): Passing null to parameter #1 ($string) of type string is deprecated in /home/httpd/vhosts/roskothen.ch/roskothen2019/wp-content/themes/roskothen/lib/polylang.php on line 19 Warning: Cannot modify header information - headers already sent by (output started at /home/httpd/vhosts/roskothen.ch/roskothen2019/wp-content/themes/roskothen/lib/polylang.php:19) in /home/httpd/vhosts/roskothen.ch/roskothen2019/wp-content/themes/roskothen/lib/polylang.php on line 40 Centre for geriatric psychiatry in Pfäfers | ROSKOTHEN ARCHITEKTEN SIA GMBH Centre for geriatric psychiatry in Pfäfers – ROSKOTHEN ARCHITEKTEN SIA GMBH
ROSKOTHEN Menü Button

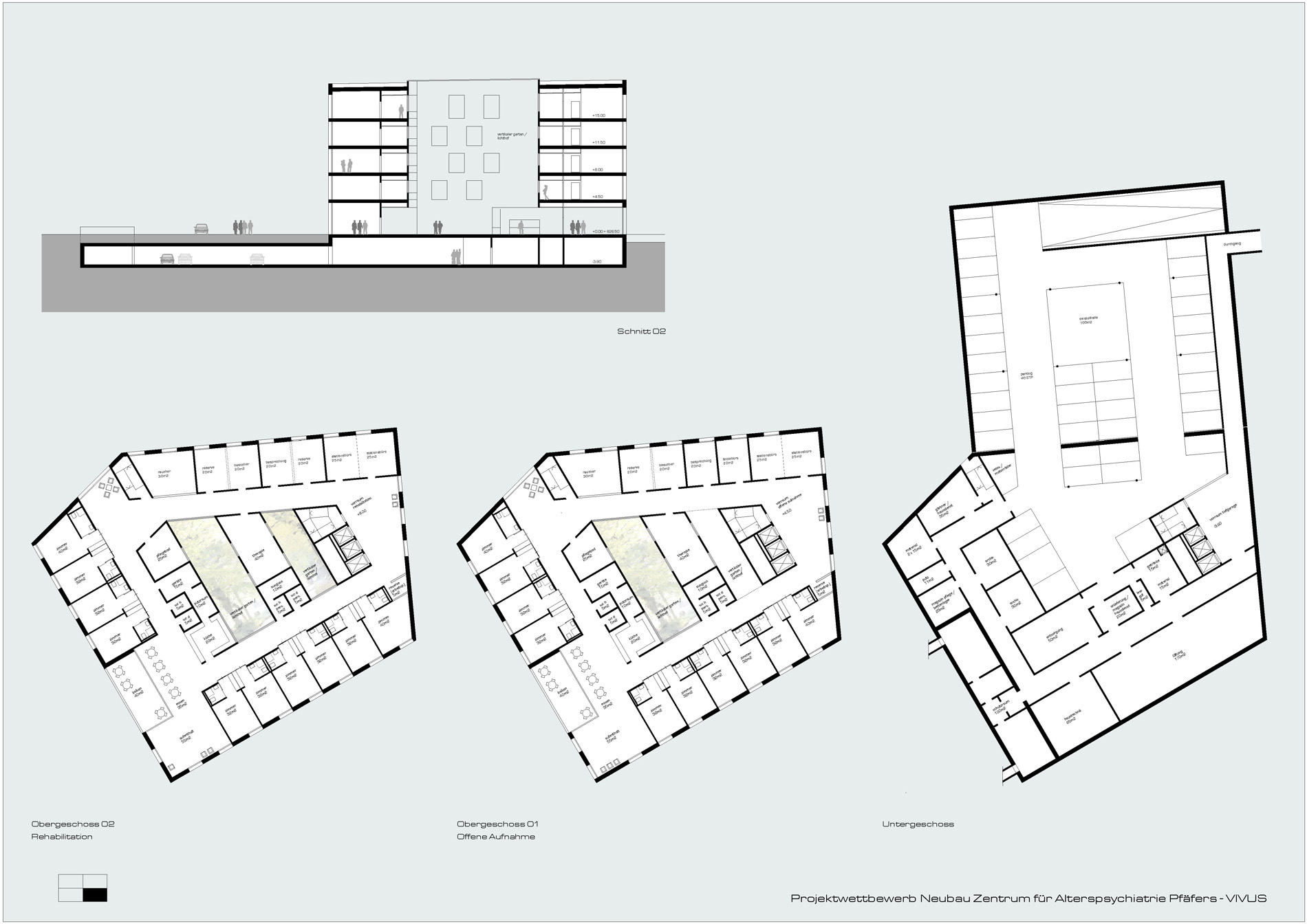
Centre for geriatric psychiatry in Pfäfers

Client
Canton of St. Gallen
Task
Centre for geriatric psychiatry
Staff Members
Frank Roskothen, Ivano Zanetti
Status
Competition design 2004, shortlisted

The topography of the terrain guides the integration of the building into the urban fabric. The depression of a pond is confined to the north by the terraced slope with existing retaining walls, to the south by the emblematic Lindenhügel (Linden Hill), to the east by the distinctive walls of the wine press building and by the detailed structure of the adjacent village with a view of the Tamina Valley to the west.
From these borders, the building rises up like a precisely cut body of rock anchored along the axis that provides access to the structure and by the spatial tension vis-à-vis the Lindenhügel.
The depression remains legible and the slopes are untouched. The exquisite open spaces are not spoilt, and the building retains an appropriate distance to the structure of the village.