Warning: Undefined array key "HTTP_ACCEPT_LANGUAGE" in /home/httpd/vhosts/roskothen.ch/roskothen2019/wp-content/themes/roskothen/lib/polylang.php on line 19 Deprecated: substr(): Passing null to parameter #1 ($string) of type string is deprecated in /home/httpd/vhosts/roskothen.ch/roskothen2019/wp-content/themes/roskothen/lib/polylang.php on line 19 Warning: Cannot modify header information - headers already sent by (output started at /home/httpd/vhosts/roskothen.ch/roskothen2019/wp-content/themes/roskothen/lib/polylang.php:19) in /home/httpd/vhosts/roskothen.ch/roskothen2019/wp-content/themes/roskothen/lib/polylang.php on line 40 Cultural centre in Teufen | ROSKOTHEN ARCHITEKTEN SIA GMBH Cultural centre in Teufen – ROSKOTHEN ARCHITEKTEN SIA GMBH
ROSKOTHEN Menü Button

Cultural centre in Teufen

Client
Community of Teufen AR
Task
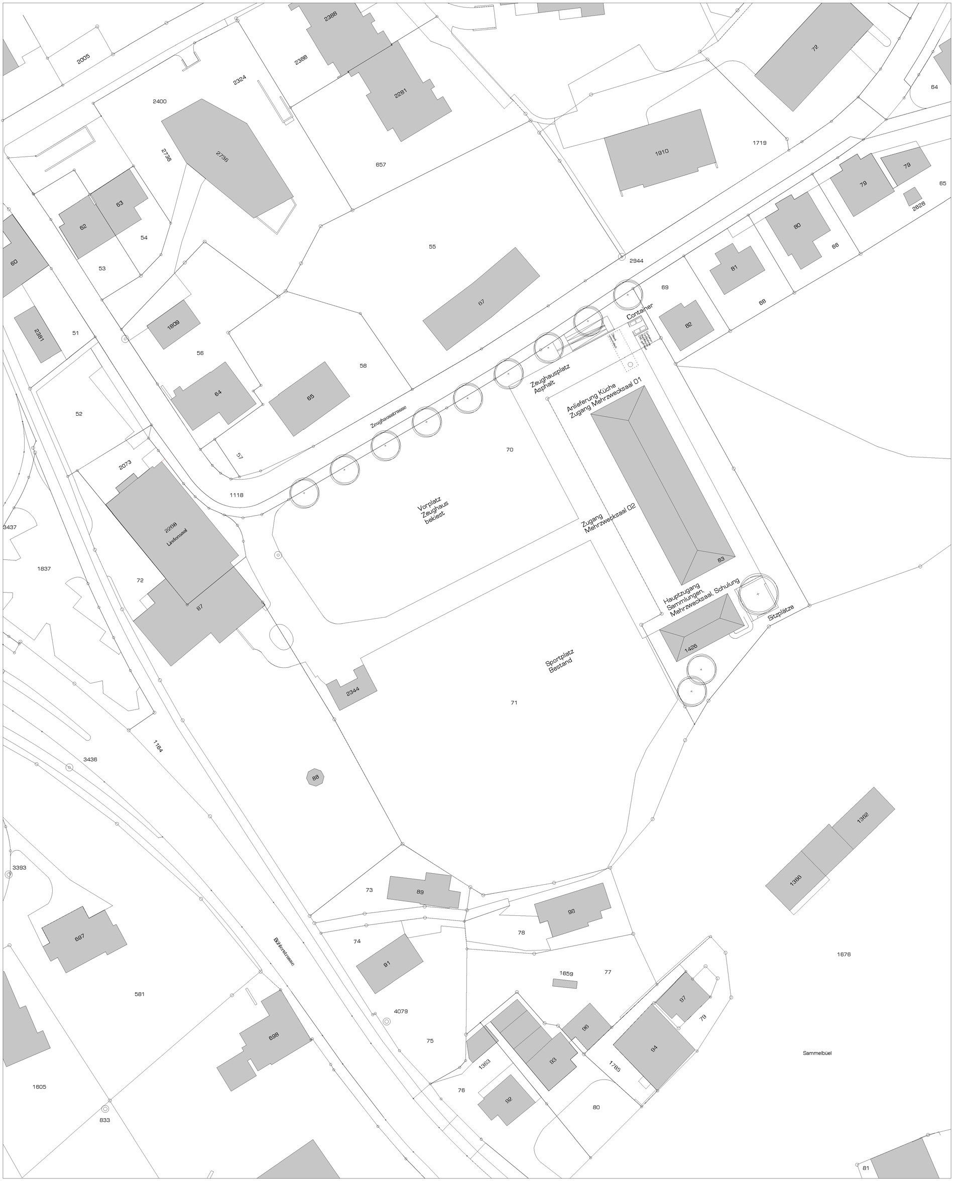
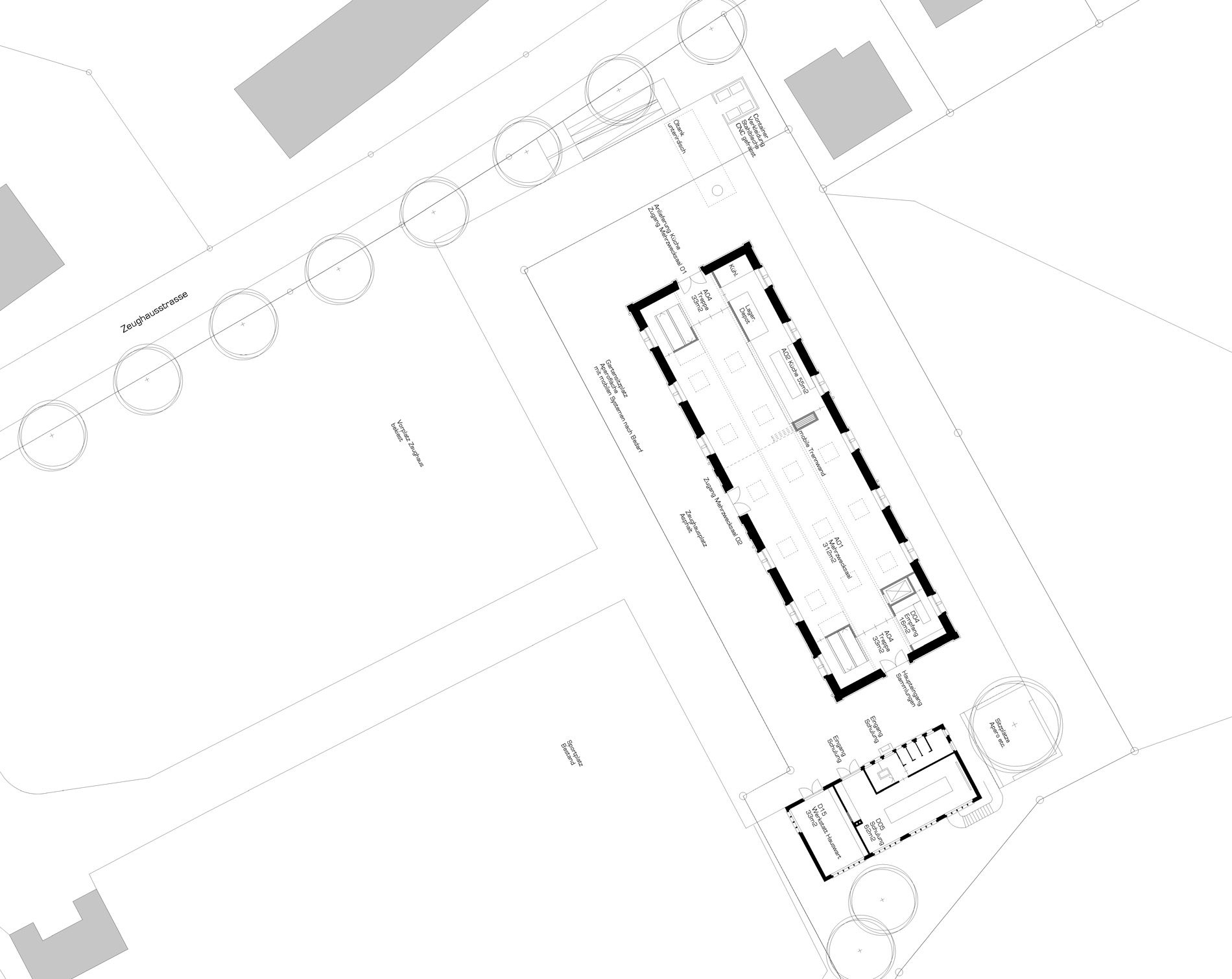
Renovation and conversion Zeughaus Teufen
Staff Members
Frank Roskothen
Status
Competition design 2008

Plans call for preserving the visual statement and basic structure of the old armoury. New elements are not meant to mask or outshine the old structures, but rather be included in a way that they remain legible additions.

The reception and sales area is located on the ground floor, while the collections are housed in the upper and top storeys.
The caretaker’s lodge is preserved and its structure left as is, with the exception of the ground floor, where the workshop of the caretaker’s residence and the training room, which is publicly accessible outside of business hours, are situated.

The basic materials of the armoury include wood, plastered brickwork and raw concrete; their appearance is left in their present state and continued in the design. The history of the building should remain apparent. Plans call for undoing modifications, such as the exterior plaster of the ground floor, that are not original to the structure and do not support its character. The objective is to return these elements to their original design.

New components, such as stairwells, an elevator and additional rooms, will be included as scaled-down white cubes. New components of this nature will be minimised to place focus squarely on the existing building. All installations relating to the building’s technical systems will be fitted in an open manner without additional coats of paint, thereby highlighting the functional nature of the armoury.