Warning: Undefined array key "HTTP_ACCEPT_LANGUAGE" in /home/httpd/vhosts/roskothen.ch/roskothen2019/wp-content/themes/roskothen/lib/polylang.php on line 19 Deprecated: substr(): Passing null to parameter #1 ($string) of type string is deprecated in /home/httpd/vhosts/roskothen.ch/roskothen2019/wp-content/themes/roskothen/lib/polylang.php on line 19 Warning: Cannot modify header information - headers already sent by (output started at /home/httpd/vhosts/roskothen.ch/roskothen2019/wp-content/themes/roskothen/lib/polylang.php:19) in /home/httpd/vhosts/roskothen.ch/roskothen2019/wp-content/themes/roskothen/lib/polylang.php on line 40 Administrative building in Ballenberg | ROSKOTHEN ARCHITEKTEN SIA GMBH Administrative building in Ballenberg – ROSKOTHEN ARCHITEKTEN SIA GMBH
ROSKOTHEN Menü Button

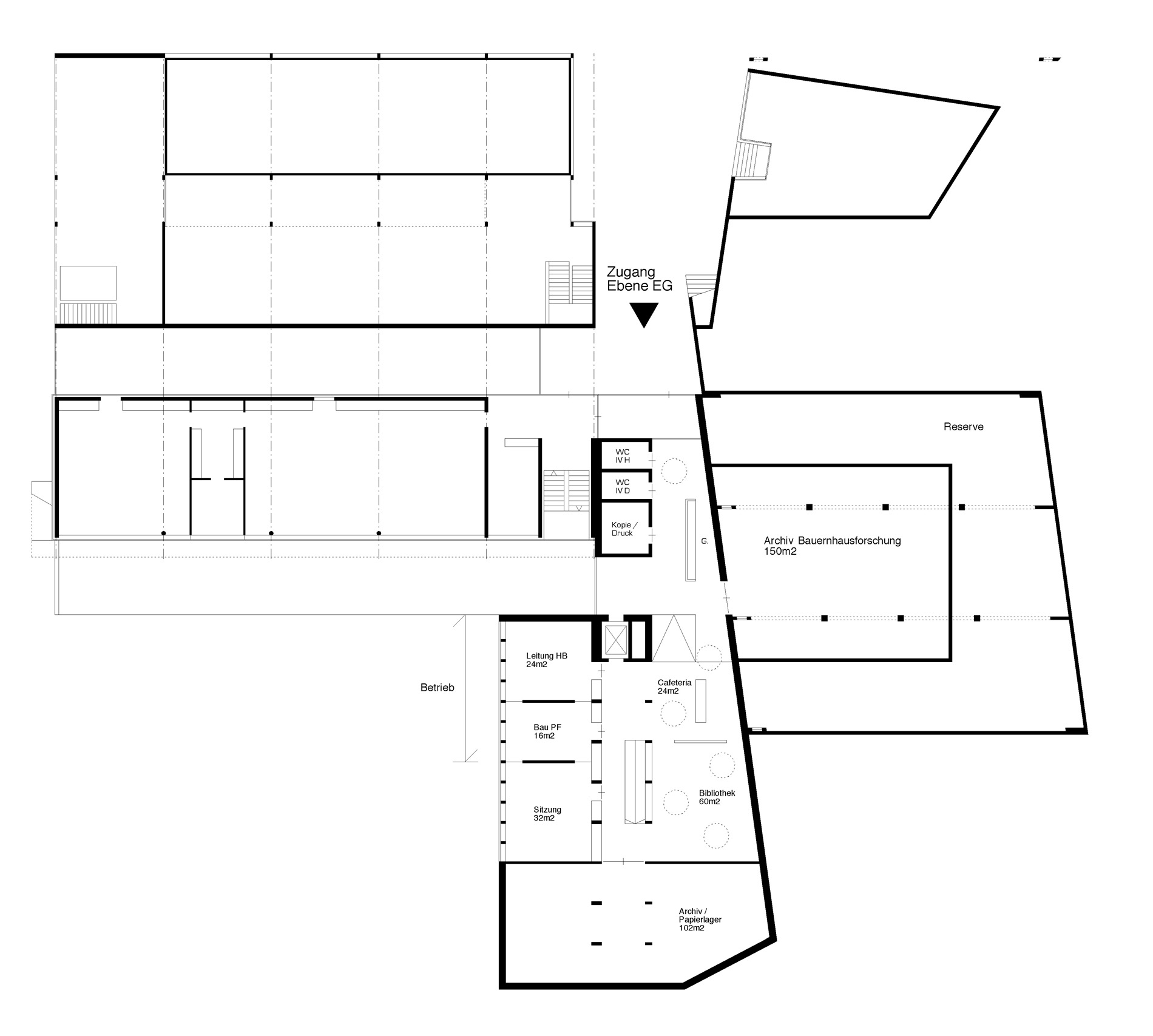
Administrative building in Ballenberg

Client
Swiss open air museum Ballenberg
Task
Administrative building
Staff Members
Frank Roskothen
Status
Competition design 2008

The striking wooden body that is planned for the new administrative building will lend the site a new and unmistakable identity. One distinctive feature is the wickerwork curtain wall in the entrance area, which serves as a rain cover and light filter. The material found locally in a wide range of fabrication techniques fits in well with the existing surroundings and blends the edge of the forest as the end of the space into the grounds of the site.

Plans call for the use of structured (casing insert OSB panels) and exposed concrete stained in a light colour for the base and components in contact with the ground, while a prefabricated, preferably uncovered wooden construction is perched on top.

 

The building’s facade is meant to be made out of wooden planks patterned horizontally or vertically, or feature a post-and-rail design with heat-absorbing glass inserts. The proposed material for the cladding is untreated Douglas fir or larch. All of the materials used will come from the immediate surroundings, following the overarching principle that the shell is the same as an extension of the space.