Warning: Undefined array key "HTTP_ACCEPT_LANGUAGE" in /home/httpd/vhosts/roskothen.ch/roskothen2019/wp-content/themes/roskothen/lib/polylang.php on line 19 Deprecated: substr(): Passing null to parameter #1 ($string) of type string is deprecated in /home/httpd/vhosts/roskothen.ch/roskothen2019/wp-content/themes/roskothen/lib/polylang.php on line 19 Warning: Cannot modify header information - headers already sent by (output started at /home/httpd/vhosts/roskothen.ch/roskothen2019/wp-content/themes/roskothen/lib/polylang.php:19) in /home/httpd/vhosts/roskothen.ch/roskothen2019/wp-content/themes/roskothen/lib/polylang.php on line 40 School complex in Stans | ROSKOTHEN ARCHITEKTEN SIA GMBH School complex in Stans – ROSKOTHEN ARCHITEKTEN SIA GMBH
ROSKOTHEN Menü Button

School complex in Stans

Client
School of Stans
Task
School complex and multipurpose hall
Staff Members
Frank Roskothen, Ivano Zanetti
Status
Competition design 2002

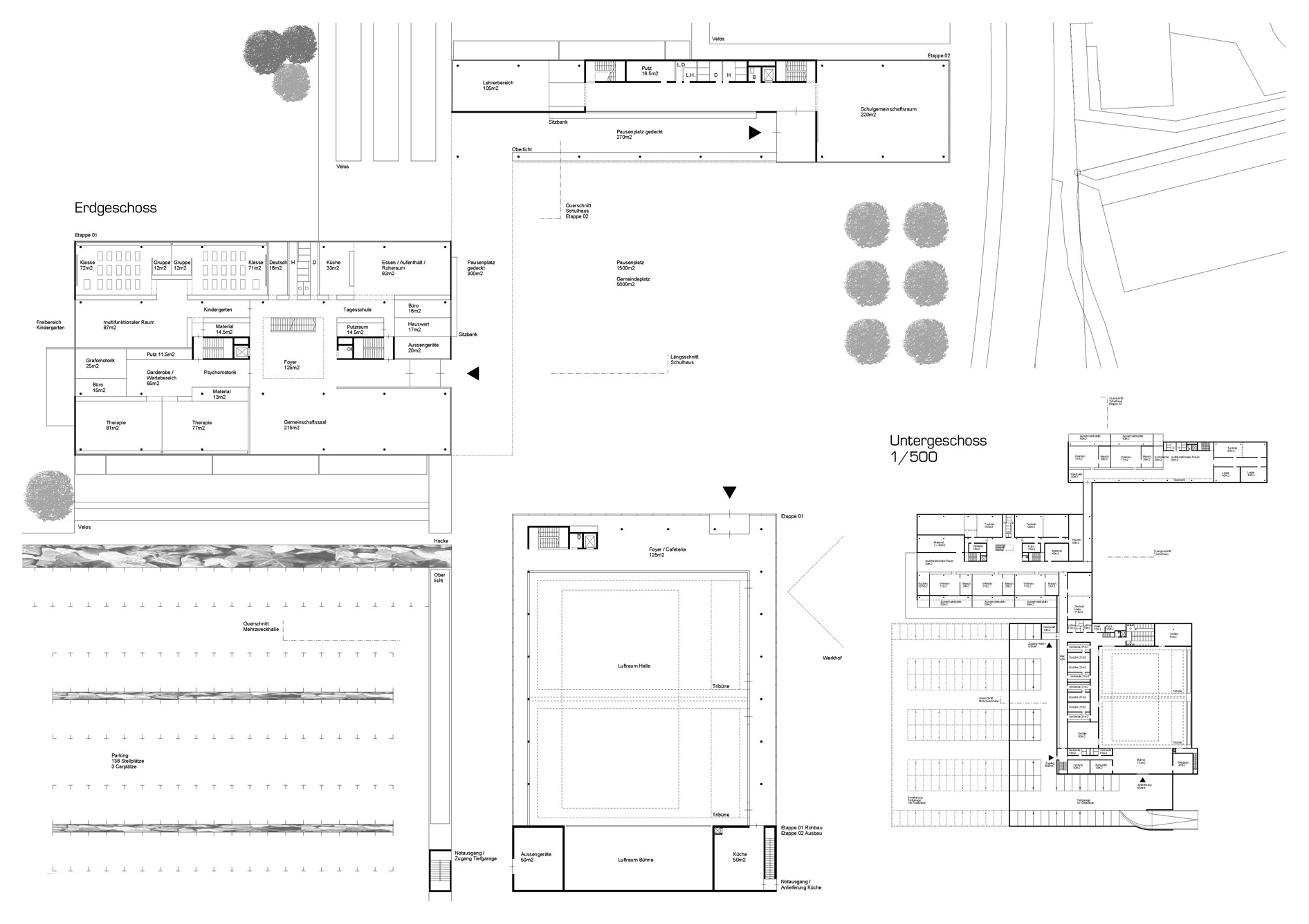
The local square forms the new centre of the area. The new school buildings are found at the edge of the square, while the gym is situated on it as a public building.
The three new buildings form an intimate courtyard that is also used during school hours as a yard for students to use during their breaks.
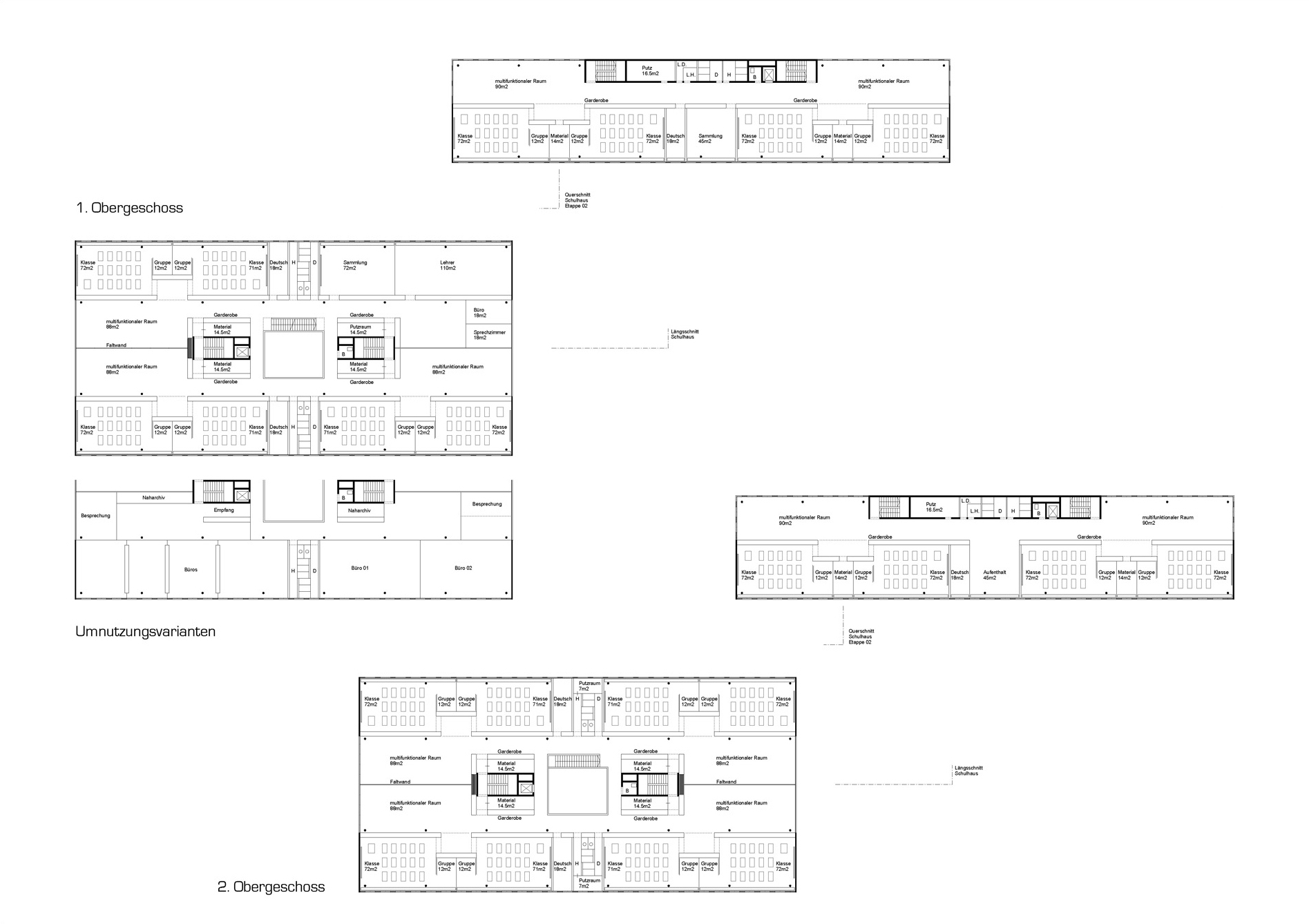
The year group serves as the basic unit driving the design of the new school building. Those rooms assigned to one year group are grouped together and form the overarching basic element.

Every unit is its own physically separated group. If needed, the multifunctional rooms of two units can be combined to create an auditorium or assembly hall using flexible partition systems. Cloakrooms and storage spaces serve as a buffer between where the year groups meet and entrance areas.

All year groups are clustered around a central entrance or common area. The zones created as a result enable the students to retreat into more private spaces, while also making it possible to interact and communicate with other grades. The school is seen as the embodiment of a small community.