Warning: Undefined array key "HTTP_ACCEPT_LANGUAGE" in /home/httpd/vhosts/roskothen.ch/roskothen2019/wp-content/themes/roskothen/lib/polylang.php on line 19 Deprecated: substr(): Passing null to parameter #1 ($string) of type string is deprecated in /home/httpd/vhosts/roskothen.ch/roskothen2019/wp-content/themes/roskothen/lib/polylang.php on line 19 Warning: Cannot modify header information - headers already sent by (output started at /home/httpd/vhosts/roskothen.ch/roskothen2019/wp-content/themes/roskothen/lib/polylang.php:19) in /home/httpd/vhosts/roskothen.ch/roskothen2019/wp-content/themes/roskothen/lib/polylang.php on line 40 Apartment building, Tuggen | ROSKOTHEN ARCHITEKTEN SIA GMBH Apartment building, Tuggen – ROSKOTHEN ARCHITEKTEN SIA GMBH
ROSKOTHEN Menü Button

Apartment building, Tuggen

Client
Manfred Janser
Task
Multiple dwelling 3 units
Staff Members
Frank Roskothen, Barbara Ziegenfuss
Status
Implementation 2010

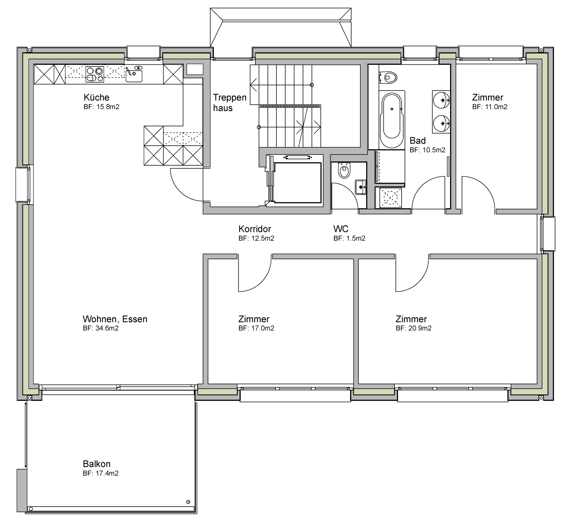
This property is situated on a slight slope at the centre of Tuggen. The building picks up on the existing typology and the materiality of the existing street-side gable-roofed houses. The exposed concrete base forms the foundation for the plastered insulated cavity wall construction of the residential floors.
The concept for the floor plan follows the general rule of aligning the bathrooms, kitchens and utility rooms towards the northern side of the main street and the bedrooms and living rooms to the peaceful, south-facing valley side.