Warning: Undefined array key "HTTP_ACCEPT_LANGUAGE" in /home/httpd/vhosts/roskothen.ch/roskothen2019/wp-content/themes/roskothen/lib/polylang.php on line 19 Deprecated: substr(): Passing null to parameter #1 ($string) of type string is deprecated in /home/httpd/vhosts/roskothen.ch/roskothen2019/wp-content/themes/roskothen/lib/polylang.php on line 19 Warning: Cannot modify header information - headers already sent by (output started at /home/httpd/vhosts/roskothen.ch/roskothen2019/wp-content/themes/roskothen/lib/polylang.php:19) in /home/httpd/vhosts/roskothen.ch/roskothen2019/wp-content/themes/roskothen/lib/polylang.php on line 40 Commercial building in Zürcherstrasse in Rapperswil | ROSKOTHEN ARCHITEKTEN SIA GMBH Commercial building in Zürcherstrasse in Rapperswil – ROSKOTHEN ARCHITEKTEN SIA GMBH
ROSKOTHEN Menü Button

Commercial building in Zürcherstrasse in Rapperswil

Client
cube P GmbH
Task
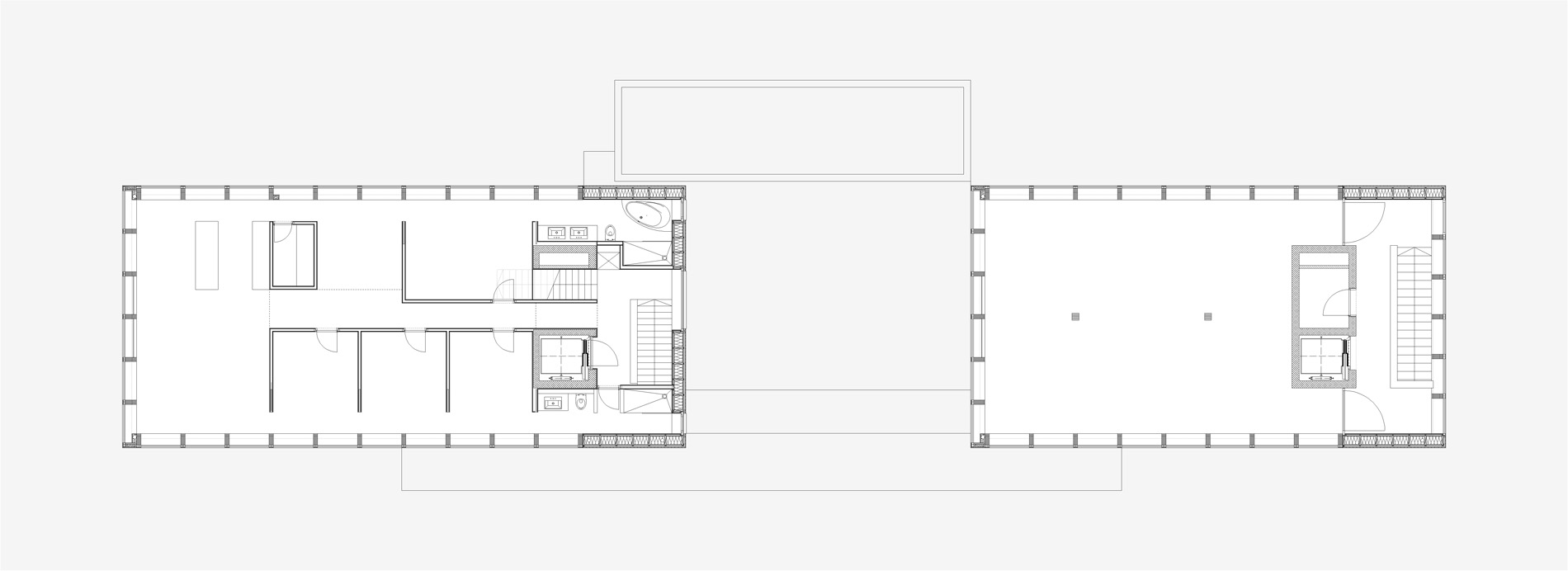
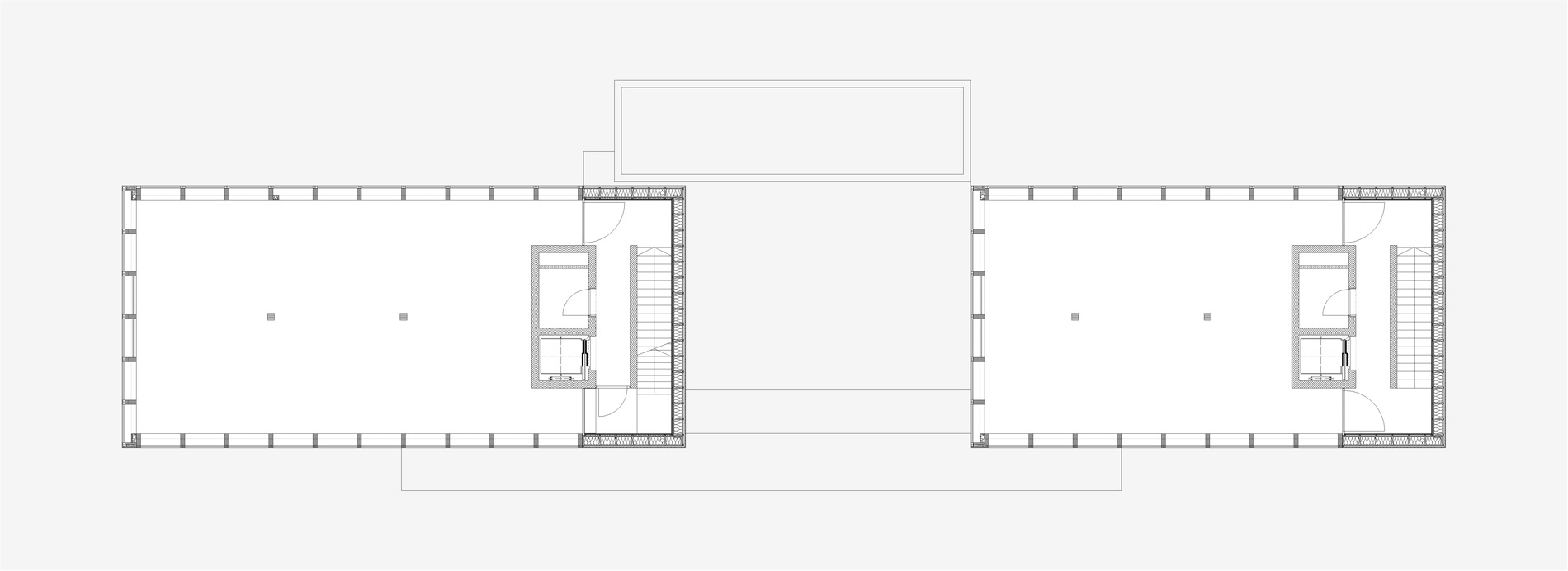
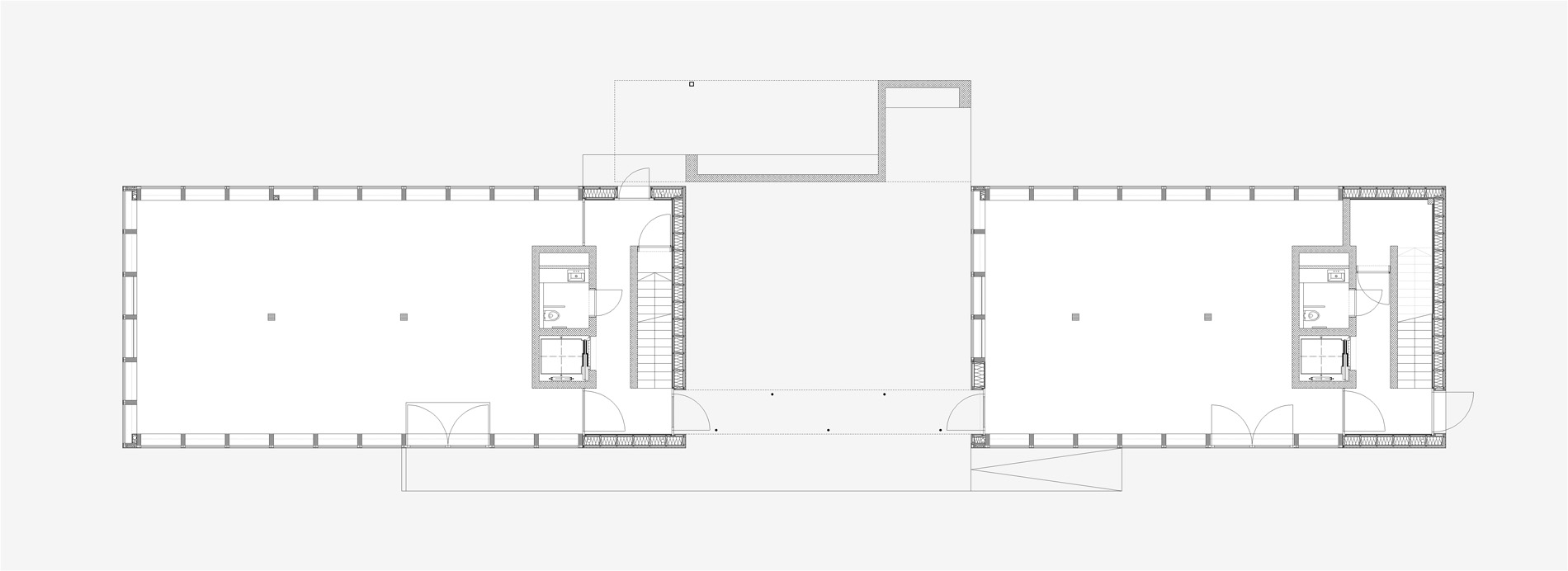
Store building with private housing
Staff Members
Frank Roskothen
Status
Approval planning 2007

The sketch provides for two separate three-storey buildings constructed with wood. The deep, shelf-like structure of the load-bearing elements gives the building the appearance of an oversized shelf. The building looks like a piece of furniture for furniture, so to speak. On every side, the facade opens up to the main axes and, when viewed as a whole, embodies the idea of a display window and advertising space in one.
The top storey features a residence facing the lake. With the exception of the reinforcing concrete core, the interior of the residence is built entirely without supports to guarantee maximum flexibility in terms of interior design.