Warning: Undefined array key "HTTP_ACCEPT_LANGUAGE" in /home/httpd/vhosts/roskothen.ch/roskothen2019/wp-content/themes/roskothen/lib/polylang.php on line 19 Deprecated: substr(): Passing null to parameter #1 ($string) of type string is deprecated in /home/httpd/vhosts/roskothen.ch/roskothen2019/wp-content/themes/roskothen/lib/polylang.php on line 19 Warning: Cannot modify header information - headers already sent by (output started at /home/httpd/vhosts/roskothen.ch/roskothen2019/wp-content/themes/roskothen/lib/polylang.php:19) in /home/httpd/vhosts/roskothen.ch/roskothen2019/wp-content/themes/roskothen/lib/polylang.php on line 40 Entrance building for Grob Textile AG | ROSKOTHEN ARCHITEKTEN SIA GMBH Entrance building for Grob Textile AG – ROSKOTHEN ARCHITEKTEN SIA GMBH
ROSKOTHEN Menü Button

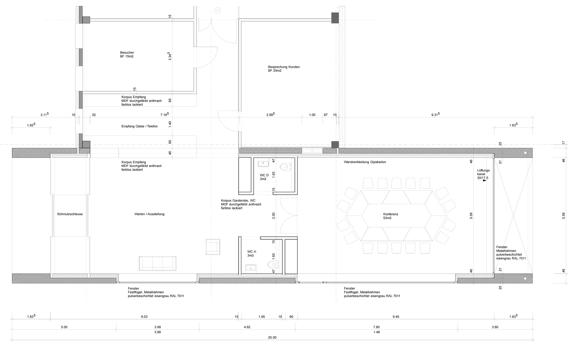
Entrance building for Grob Textile AG

Client
Grob Textile AG
Task
Entrance building with conference room
Staff Members
Frank Roskothen, Pius Bieri
Status
Implementation 2006 - 07

The plan is to build a representative entrance building with an attached conference hall for the company Grob Textile AG.

The design calls for exposed concrete stained black. The building itself will be located at the end of a linear arrangement of industrial facilities and serves as the final statement of the existing structures.

The concrete surface structured using OSB panels makes reference to the products manufactured by Grob Textile AG and their end result. Structuring the concrete gives it a soft appearance reminiscent of textiles. The sunshade made from metallic fabric in the main entranceway carries this idea further.

Inside the new building, all components were designed as objects in tune with the overall composition. As a result, the new building can always be perceived in its entirety. This is key to achieving a high degree of openness and spaciousness in line with the company’s mission.