Warning: Undefined array key "HTTP_ACCEPT_LANGUAGE" in /home/httpd/vhosts/roskothen.ch/roskothen2019/wp-content/themes/roskothen/lib/polylang.php on line 19 Deprecated: substr(): Passing null to parameter #1 ($string) of type string is deprecated in /home/httpd/vhosts/roskothen.ch/roskothen2019/wp-content/themes/roskothen/lib/polylang.php on line 19 Warning: Cannot modify header information - headers already sent by (output started at /home/httpd/vhosts/roskothen.ch/roskothen2019/wp-content/themes/roskothen/lib/polylang.php:19) in /home/httpd/vhosts/roskothen.ch/roskothen2019/wp-content/themes/roskothen/lib/polylang.php on line 40 Halden gym in Rapperswil | ROSKOTHEN ARCHITEKTEN SIA GMBH Halden gym in Rapperswil – ROSKOTHEN ARCHITEKTEN SIA GMBH
ROSKOTHEN Menü Button

Halden gym in Rapperswil

Client
School of Rapperswil
Task
extension and reconstruction Halden gym
Staff Members
Frank Roskothen, Pius Bieri, Werner Morger, Joya Lingg
Status
Implementation after 1st price competition design 2005, 2007 - 08

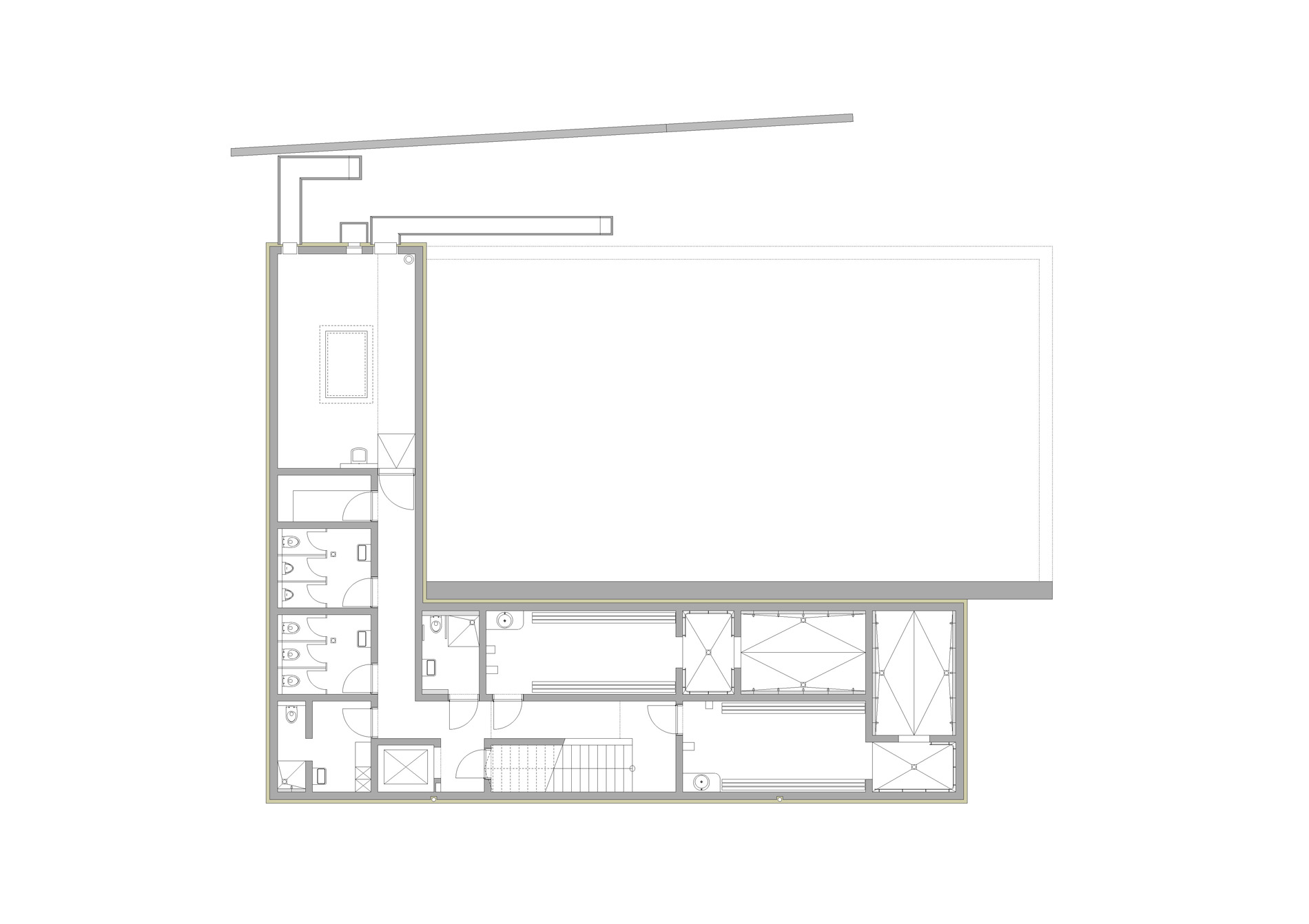
Earlier renovations and additions carried out with little sensitivity have greatly reduced the visual impact of Halden gym. Apart from the facade on the north side of the building, all distinctive characteristics have been ruined. The current sketch removes those additions with no historical or practical value and restores the building to its former proportions. The gym is extended back to its original dimensions, and the southern facade is recreated as an interpretation of the original plan. The transverse box window in the facade facing the street cites the main entrance originally located here.

The above-ground portion of the new addition is scaled down to the absolutely necessary dimensions and set down from the profile to clearly highlight its role as a subordinate or secondary structural element.

The choice of cladding for the addition − planks of Douglas fir positioned horizontally − further support this objective. The entranceway is designed as a seam clearly offset from the gym.

The bulk of the spaces are relocated to the basement, which is illuminated by a large window in the access corridor.